Denah Rumah 7 X 12

Jan 27, 2021

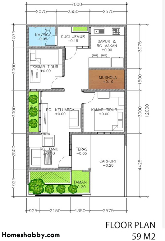
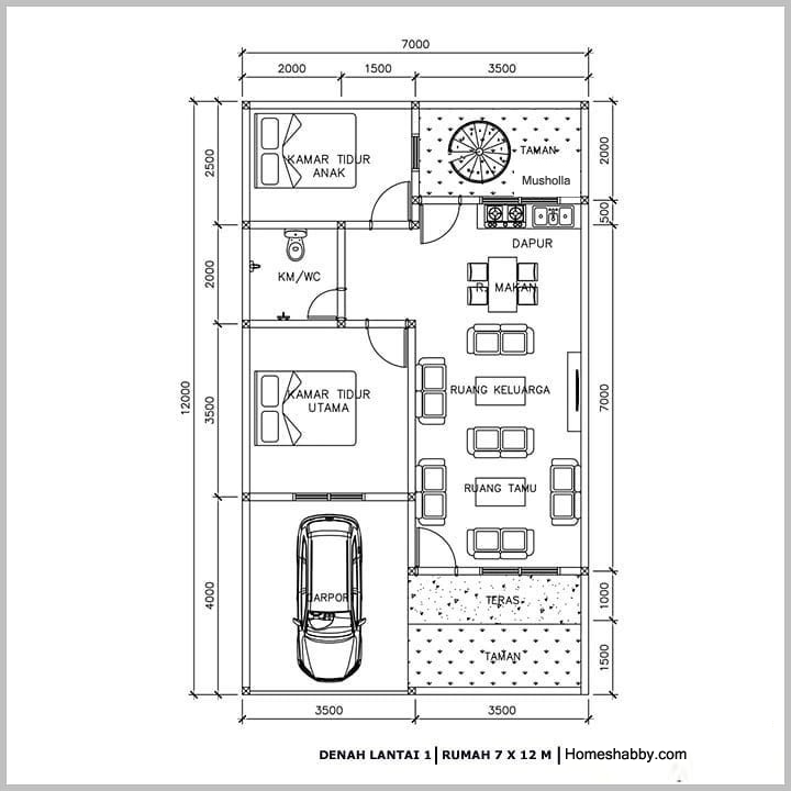
Pin oleh Laura Diaz di My Saves di 2021 | Rumah minimalis, Denah … LINGKAR WARNA: Denah rumah minimalis ukuran 7x12 meter 2 kamar … 10 Inspirasi Denah Rumah Minimalis 7x12 Lengkap dengan Desainnya Denah Rumah Minimalis 1 Lantai Ukuran 7x12 | Desain Rumah Minimalis Denah rumah minimalis ukuran 7x12 me 2 kamar tidur 2 lantai + … 10 Inspirasi Denah Rumah Minimalis 7x12 Lengkap dengan Desainnya Denah rumah ukuran 7x12 3 kamar tidur 1 lantai DENAH LENGKAP PART … LINGKAR WARNA: Denah rumah minimalis ukuran 7x12 meter 4 kamar … Koleksi Denah Rumah Minimalis Ukuran 7x12 meter Denah Rumah Ukuran 7x12 Tanpa Garasi - DESAIN RUMAH MINIMALIS 89 Trend Desain Rumah Ukuran 7X12 Paling Terkenal - Deagam Design Desain Rumah Minimalis 2 Lantai 7 X 12 87+ Gambar Rumah 2 Lantai Ukuran 7x12 Terbaru - Gambar rumah Denah Rumah 3 Kamar Ukuran 7 X 12 - Desain Rumah Modern DESAIN rumah minimalis modern ukuran 7x12 meter 3 kamar tidur 1 … Desain Rumah Minimalis 7x12 3 Kamar Tidur 1 Lantai - DESAIN RUMAH … 79 Ide Desain Rumah Minimalis 7X12 2 Lantai Terbaru dan Terlengkap … Pin di yanwar 10 Inspirasi Denah Rumah Minimalis 7x12 Lengkap dengan Desainnya Contoh Denah Rumah Ukuran 7x12 - Desain Rumah Modern Desain Rumah Minimalis Ukuran 7x12 | Cek Bahan Bangunan Desain Rumah Minimalis Sederhana Ukuran 7x12 - Jual Bata Ekspos LINGKAR WARNA: 5 Denah rumah minimalis ukuran 7x12 meter 2 kamar … Kumpulan Desain dan Denah Rumah Minimalis Dengan 3 Kamar Tidur … Rumah minimalis 7.5x12 3 Kamar Tidur - DESAIN RUMAH MINIMALIS DESAIN RUMAH 7X12 M DENGAN 3 KAMAR TIDUR - YouTube Gambar Denah Rumah Minimalis Ukuran 7x12 3 Kamar Terupdate | Denahom Desain Rumah Minimalis Modern 7x12 2 Lantai , Contoh Gambar Pin di denah rumah minimalis terbaru 30 Inspirasi Desain Rumah 7 x 12 Terbaik - Desain.id Desain Denah Rumah Ukuran 7x12 Meter Kamar 3 Kreatif … Desain Rumah 7 X 12 - Situs Properti Indonesia 10 Inspirasi Denah Rumah Minimalis 7x12 Lengkap dengan Desainnya DESAIN RUMAH MINIMALIS 7x12 3 KAMAR TIDUR, MUSHOLA + DENAH (DESAIN … Denah Rumah Ukuran 7×12 - Desain Rumah Modern Denah rumah minimalis ukuran 7x12 me 2 kamar tidur 2 lantai … Denah Rumah Minimalis 3 kamar 7x12 Taman Luas - DESAIN RUMAH MINIMALIS Denah Rumah Minimalis Ukuran 7x12 3 Kamar Mewah | Rancanghunian Tata cara membuat denah rumah ukuran 7x12 - Godean.web.id Desain Rumah Minimalis 2 Lantai Ukuran 7x12 66 Desain Rumah Minimalis 7 X 12 Model Rumah Ukuran 7 X 12 - MODEL RUMAH TERBARU - MODEL RUMAH TERBARU 10 Inspirasi Denah Rumah Minimalis 7x12 Lengkap dengan Desainnya Desain Rumah Luas 7X12 meter 3 kamar tidur - YouTube 91 Ragam Desain Rumah Ukuran 7X12 Istimewa Banget - Deagam Design 2 Bagan Rumah Minimalis Ukuran 7X12 Meter 5 Kamar Tidur 2 Lantai + … LINGKAR WARNA: 5 Denah rumah minimalis ukuran 7x12 meter 3 kamar … Denah Rumah 3 Kamar Ukuran 7x12 dan Bentuk Rumah Sederhananya … denah rumah 7x12 1 lantai 3 kamar tidur - YouTube Hebat Desain Rumah Sederhana 7x12 76 Dengan Tambahan Ide Dekorasi … 10 Inspirasi Denah Rumah Minimalis 7x12 Lengkap dengan Desainnya 15 Contoh Rumah Minimalis Ukuran 7 12 Unik Denah Rumah Denah Rumah … 48 Arsitektur Desain Rumah Ukuran 7X12 Paling Populer di Dunia … Contoh Denah Rumah Ukuran 7 X 12 Terbaru | Denahom LINGKAR WARNA: 5 Denah rumah minimalis ukuran 7x12 meter 2 kamar … Tanah 7 X 12, Bisa Tidak Dibuat Rumah 1 Lantai dengan 3 Kamar … Desain Rumah Minimalis Modern 7x12 2 Lantai , Contoh Gambar Desain Rumah 7 X 12 - Desain.id Desain Rumah Minimalis Ukuran 7X12 Meter - YouTube Desain Rumahminimalis - HOUSE 7X12 meters with 3 bedrooms there … Denah Rumah Minimalis 7x12 3 Kamar Tidur 1 Lantai - DESAIN RUMAH … Denah Rumah 7x12 Dengan 3 Kamar Tidur Gambar Denah Rumah Jawa … Desain dan Denah Rumah Minimalis Ukuran 7 x 12 M, 3 Kamar Kamar … 10 Inspirasi Denah Rumah Minimalis 7x12 Lengkap dengan Desainnya Desain Rumah Minimalis 7 X 12 Desain Rumah 5 x 20 M2 Dua Lantai ~ Desain Rumah Online 69 Desain Rumah Minimalis Ukuran 8×12 Meter | SEON One Stop Solution Desain Rumah Ukuran 6x12 Dengan 3 Kamar 68 Gambar Rumah Minimalis 2 Lantai Ukuran 7x12 Gratis - Gambar rumah LINGKAR WARNA: 5 Denah rumah minimalis ukuran 7x12 meter 3 kamar … rumah 7x12 minimalis 2 lantai - Jasa Desain Rumah Online desain rumah minimalis sederhana 1 lantai 3 kamar tidur 7 x 12 … DESAIN RUMAH MINIMALIS - UKURAN 7 X 12 DENGAN DENAHNYA - YouTube Desain Rumah Minimalis Ukuran 7x12 - Gambar Model Rumah Minimalis Desain rumah dengan Konsep 2 lantai luas 7x12 m dengan 3 kamar … Desain Rumah Minimalis 2 Lantai 7 X 12 Model Atap Rumah Minimalis 7x12 Desain dan Denah Rumah Minimalis Ukuran 7 x 12 M dengan Nuansa … 18 Pilihan Desain Rumah Minimalis 2 Lantai 7 X 12 – Inspirasi Ide … Denah Rumah 3 Kamar dan Mushola - RHDesainRumah Denah Desain Rumah 7 X 12 Terbaru - Desain.id √ 60+ Gambar Denah Rumah: Minimalis Modern, Trend 2020! Harga rumah kayu Panggung Tipe 84 m2 (7 x 12) | Rumah Kayu Tomohon … Download Desain Rumah Minimalis Sederhana 1 Lantai 3 Kamar Tidur 7 … Lahan Cuma 7x12 Meter tapi Ada Kolam Renang Minimalis? Ini … 86 Koleksi Gambar Rumah Tampak Depan Ukuran 7x12 Terbaik - Gambar … denah rumah 7x12 3 kamar tidur, rumah mezzanine, ANIMASI UKURAN … 35+ Gambar Denah Rumah 7 X 12 Terbaru - Koleksi Gambar Rumah … Artikel: Denah Rumah 7 X 12 3 Kamar Tidur| HBS Blog – Hakana … Denah Rumah 7x12 Dengan 3 Kamar Tidur Denah Rumah Minimalis 3 … DENAH+RUMAH+7X12+3+KAMAR+TIDUR - video.SportNK denah rumah 2 lantai 7×12 – Cara Lambat LINGKAR WARNA: 5 Denah rumah minimalis ukuran 7x12 meter 3 kamar … Desain Rumah 2 Lantai di Lahan 7 x 12 M2 | DR – 709 - Desain Rumah … 10 Inspirasi Denah Rumah Minimalis 7x12 Lengkap dengan Desainnya 63 Desain Rumah Minimalis 7 X 15 | Desain Rumah Minimalis Terbaru Desain Rumah Minimalis 3 Kamar Ukuran 7x12 - Jual Bata Ekspos Desain Rumah Minimalis Modern Terbaru 7 x 12 M Lengkap Dengan … 710+ Gambar Rumah Tingkat Ukuran 7x12 Gratis Terbaik - Gambar rumah 66 Desain Rumah Minimalis 7 X 12 | Desain Rumah Minimalis Terbaru

Isekai Cheat Magician Mal

Dota 2 Leaderboard Indonesia

>